Villa singola in vendita

Calliano, Strada Perrona
€ 320.000
Prezzo aggiornato
5 locali 5 locali
200 Mq 200 Mq
3 bagni 3 bagni

Villa singola in vendita

Calliano, Strada Perrona

Descrizione annuncio

Villa indipendente con vista panoramica a Calliano

A pochi passi dal centro di Calliano, proponiamo in vendita una splendida villa indipendente costruita nel 2005, immersa nel verde e caratterizzata da una posizione privilegiata con vista mozzafiato sulle colline circostanti.

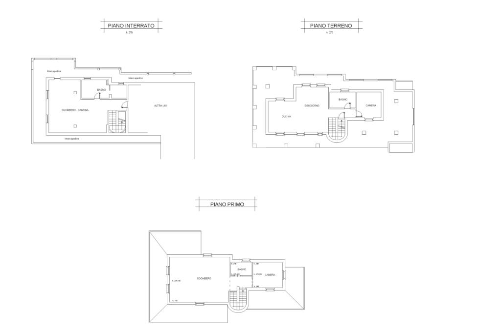
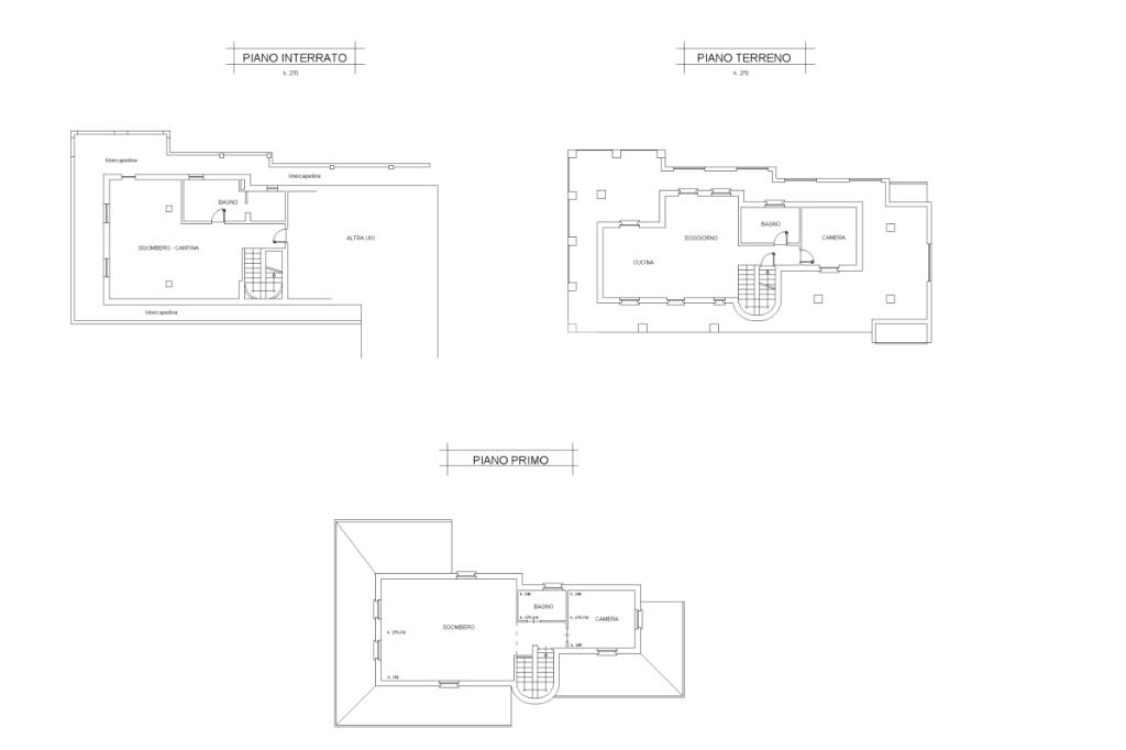
L’abitazione si sviluppa su più livelli:
Al piano terra si sviluppa un ampio e luminoso open space con zona soggiorno e cucina, entrambi con accesso diretto al balcone e al terrazzo, ideali per momenti di relax all’aperto. Completano il piano una camera da letto e un bagno finestrato.
Al primo piano troviamo una accogliente mansarda composta da una seconda camera da letto e un bagno, perfetta come zona ospiti o studio.
Al piano interrato c'è una spaziosa taverna con lavanderia e un grande garage, ideale per più veicoli e per chi cerca ampi spazi di deposito.

All’esterno, la proprietà è circondata da giardino e terreno privato, offrendo privacy e tranquillità in un contesto naturale e riservato.

Questa villa è la soluzione ideale per chi desidera vivere in una casa indipendente, moderna e ben tenuta, senza rinunciare alla comodità dei servizi vicini.

Mostra tutto

Nelle vicinanze

Trasporto pubblico Trasporto pubblico
Penango
Penango
2,6 Km
Tonco-Alfiano
Tonco-Alfiano
2,9 Km
Farmacia Farmacia
Farmacia
340 m
Ristoranti Ristoranti
La Possavina
2,0 Km
Ciabot del Grignolin
2,8 Km
Mostra tutto

Caratteristiche

Rif.:
61124794
Piano:
Terra di 3
Totale piani:
3
Box:
1
Balconi:
1
Terrazzi:
1
Mostra tutto
Prezzo Prezzo
€ 320.000
Rata mutuo Rata mutuo
€ 1.508 / mese
Proponi il tuo prezzoProponi il tuo prezzo

Classe Energetica

D
D
D
D
D
D
D
D
D
EP globale non rinnovabile:
124.17 kW h/m² anno
EP globale rinnovabile:
0.64 kW h/m² anno
EP invernale del fabbricato:
EP estiva del fabbricato:
Anno di costruzione:
2005
Riscaldamento:
Autonomo
Tipo impianto:
A radiatori
Tipo alimentazione:
Metano

Prezzo ridotto di €1 (4%%)

Ti interessa visionare l'immobile?

Fissa un appuntamento  Fissa un appuntamento

Richiedi informazioni

Clicca su Leggi per aprire l'informativa
* Questi campi sono obbligatori

Calcola il tuo mutuo

Semplice e senza impegno
Anticipo

( % )
Mutuo

( % )

pochi semplici passi

inserisci i tuoi dati
Questionario completato
Grazie per aver richiesto un appuntamento senza impegno con un nostro Consulente del Credito e Assicurativo.

Hai inserito correttamente tutti i dati necessari e a breve riceverai una e-mail con un link da convalidare per inviare i tuoi dati.
Affiliato
Studio Castell'Alfero Sas
Via Casale, 112 14033 Castell'Alfero (AT)

Il nostro staff


  • Chiara Zannino
    Affiliata

  • Asia Garrasi
    Coordinatrice

  • Roberta Vignale
    Collaboratrice
Via Casale, 112 14033 Castell'Alfero (AT)
Zona: Castell'Alfero-Calliano-Moncalvo
Mostra su mappa
Affiliato
Studio Castell'Alfero Sas
Via Casale, 112 14033 Castell'Alfero (AT)

2026 Tecnocasa Franchising S.p.A. - P. IVA 08365160152 - Via Monte Bianco 60/A 20089 Rozzano (MI). Ogni agenzia ha un proprio titolare ed è autonoma. Privacy policy | Policy utilizzo | Cookie policy