Casa semindipendente in vendita

Castagnole Monferrato, Via Roma
€ 57.000
15 locali 15 locali
623 Mq 623 Mq

Casa semindipendente in vendita

Castagnole Monferrato, Via Roma

Descrizione annuncio

Nel cuore del suggestivo borgo di Castagnole, proponiamo in vendita una maestosa casa storica libera su tre lati, immersa in un ampio giardino privato che regala quiete, privacy e bellezza in ogni stagione.
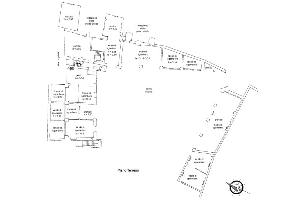
Con una superficie di circa 623 mq, questa residenza rappresenta un raro esempio di architettura d’epoca, perfetta per chi cerca carattere, autenticità e potenziale.

Ogni angolo della casa racconta una storia: dalle volte affrescate ai dettagli decorativi originali, dai soffitti dipinti alle pareti con motivi antichi, ogni elemento architettonico è testimonianza di un passato ricco di arte e cultura.
La struttura, imponente e affascinante, si sviluppa su più livelli e conserva elementi unici come archi in mattoni, balconi storici, porte in legno massello e logge panoramiche.
Il giardino privato, ampio e verdeggiante, circonda la proprietà e offre uno spazio ideale per momenti di relax, eventi o progetti paesaggistici.

La casa necessita di ristrutturazione, offrendo l’opportunità di personalizzare ogni ambiente e riportare alla luce la sua magnificenza originale, integrando comfort moderni senza rinunciare al fascino storico.

Situata in una zona tranquilla e ben esposta di Castagnole, a pochi minuti dai principali servizi, questa dimora è ideale per chi desidera vivere in un contesto autentico, lontano dal caos cittadino ma ben connesso. Un’occasione unica per chi sogna di abitare o investire in una proprietà dal fascino senza tempo, dove ogni dettaglio parla di eleganza, storia e bellezza.

Mostra tutto

Nelle vicinanze

Farmacia Farmacia
Farmacia
320 m
Bar Bar
Ristorante da Geppe
280 m
Ristoranti Ristoranti
Ristoranti
250 m
Il Crivello d'Oro
410 m
La Miraja
440 m
La Raviola Galante
2,2 Km
Osteria del Rooster
2,7 Km
Mostra tutto

Caratteristiche

Rif.:
61142584
Piano:
3 (Piano terra con giardino)
Condizionamento:
Assente
Ascensore:
No
Riscaldamento:
Assente
Giardino:
Privato
Mostra tutto
Prezzo Prezzo
€ 57.000
Rata mutuo Rata mutuo
€ 269 / mese
Proponi il tuo prezzoProponi il tuo prezzo

Altre caratteristiche

Classe Energetica

Questo immobile è esente da classe energetica
Anno di costruzione:
1900
Riscaldamento:
Assente

Ti interessa visionare l'immobile?

Fissa un appuntamento  Fissa un appuntamento

Richiedi informazioni

Clicca su Leggi per aprire l'informativa
* Questi campi sono obbligatori

Calcola il tuo mutuo

Semplice e senza impegno
Anticipo

( % )
Mutuo

( % )

pochi semplici passi

inserisci i tuoi dati
Questionario completato
Grazie per aver richiesto un appuntamento senza impegno con un nostro Consulente del Credito e Assicurativo.

Hai inserito correttamente tutti i dati necessari e a breve riceverai una e-mail con un link da convalidare per inviare i tuoi dati.
Affiliato
Studio Castell'Alfero Sas
Via Casale, 112 14033 Castell'Alfero (AT)

Il nostro staff


  • Chiara Zannino
    Affiliata

  • Asia Garrasi
    Coordinatrice

  • Roberta Vignale
    Collaboratrice
Via Casale, 112 14033 Castell'Alfero (AT)
Zona: Castell'Alfero-Calliano-Moncalvo
Mostra su mappa
Affiliato
Studio Castell'Alfero Sas
Via Casale, 112 14033 Castell'Alfero (AT)

2026 Tecnocasa Franchising S.p.A. - P. IVA 08365160152 - Via Monte Bianco 60/A 20089 Rozzano (MI). Ogni agenzia ha un proprio titolare ed è autonoma. Privacy policy | Policy utilizzo | Cookie policy