Bilocale in vendita

Castell'Alfero, Via Casale
€ 33.000
2 locali 2 locali
64 Mq 64 Mq
1 bagno 1 bagno

Bilocale in vendita

Castell'Alfero, Via Casale

Descrizione annuncio

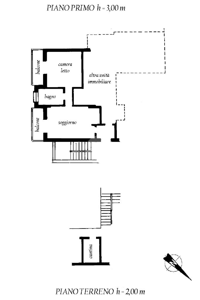
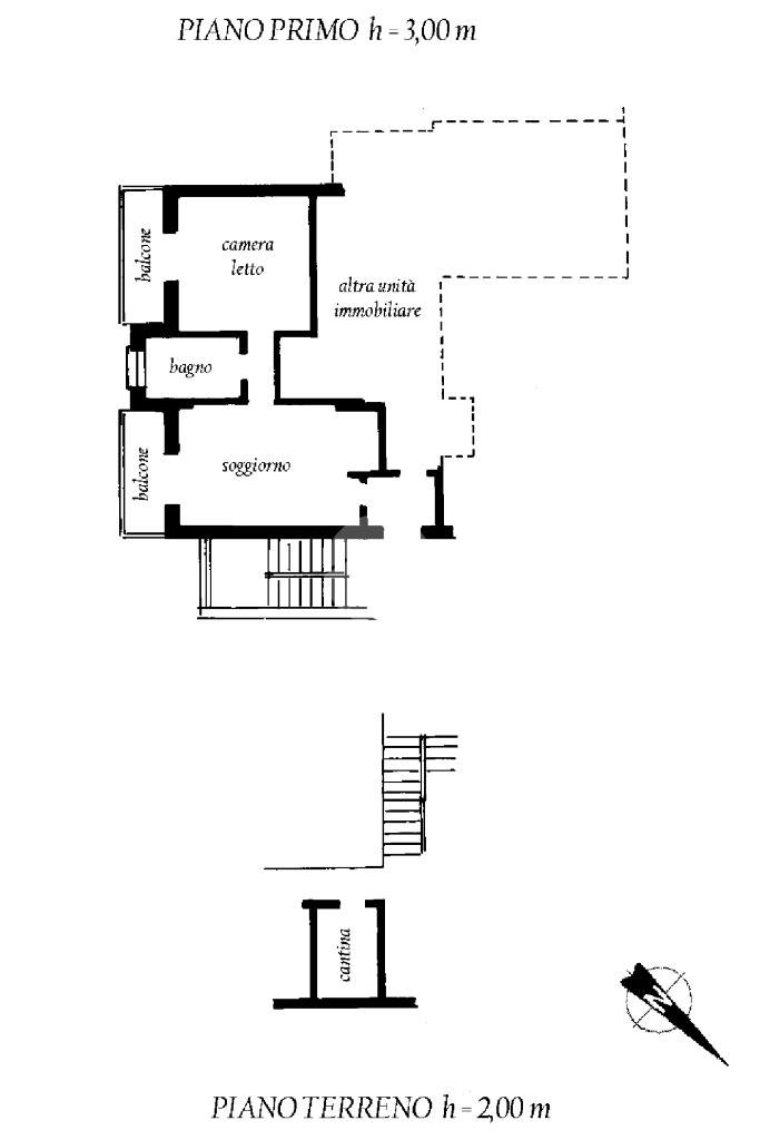
Nel cuore del comune di Castell'Alfero, proponiamo un appartamento situato al primo piano di un edificio civile costruito nel 1970.

L'immobile, ristrutturato negli anni 2000, offre una superficie di 64 mq suddivisa in due locali. La zona giorno è luminosa e accogliente, mentre la camera da letto garantisce comfort e tranquillità. Il bagno è funzionale e ben rifinito. Due balconi con affaccio interno cortile offrono uno spazio esterno riservato e piacevole.

L'appartamento è attualmente affittato, rappresentando un'opportunità interessante per chi cerca un investimento.

Completa la proprietà un posto auto condominiale, che aggiunge praticità e comodità.

La posizione strategica e le caratteristiche dell'immobile lo rendono una scelta ideale per chi desidera vivere in un contesto tranquillo senza rinunciare ai servizi essenziali.

Mostra tutto

Nelle vicinanze

Trasporto pubblico Trasporto pubblico
Castell'Alfero
Castell'Alfero
360 m
Castell'Alfero (Stazione FS)
Castell'Alfero (Stazione FS)
670 m
Castell’Alfero
Castell’Alfero
610 m
Farmacia Farmacia
Farmacia
380 m
Supermercati Supermercati
Mercatò
2,0 Km
Negozi Negozi
Shun Fa
2,0 Km
Ristoranti Ristoranti
Ciabot del Grignolin
1,8 Km
Ciabot
2,7 Km
Mostra tutto

Caratteristiche

Rif.:
61038167
Piano:
1 di 3 (Piano basso)
Balconi:
2
Camere da letto:
1
Arredamento:
Completo
Condizionamento:
Assente
Mostra tutto
Prezzo Prezzo
€ 33.000
Rata mutuo Rata mutuo
€ 156 / mese
Spese annue Spese annue
€ 1.400
Proponi il tuo prezzoProponi il tuo prezzo

Classe Energetica

E
E
E
E
E
E
E
E
E
EP globale non rinnovabile:
174.89 kW h/m² anno
EP globale rinnovabile:
0.00 kW h/m² anno
EP invernale del fabbricato:
EP estiva del fabbricato:
Anno di costruzione:
1970
Riscaldamento:
Centralizzato
Tipo impianto:
A radiatori
Tipo alimentazione:
Metano

Ti interessa visionare l'immobile?

Fissa un appuntamento  Fissa un appuntamento

Richiedi informazioni

Clicca su Leggi per aprire l'informativa
* Questi campi sono obbligatori

Calcola il tuo mutuo

Semplice e senza impegno
Anticipo

( % )
Mutuo

( % )

pochi semplici passi

inserisci i tuoi dati
Questionario completato
Grazie per aver richiesto un appuntamento senza impegno con un nostro Consulente del Credito e Assicurativo.

Hai inserito correttamente tutti i dati necessari e a breve riceverai una e-mail con un link da convalidare per inviare i tuoi dati.
Affiliato
Studio Castell'Alfero Sas
Via Casale, 112 14033 Castell'Alfero (AT)

Il nostro staff


  • Chiara Zannino
    Affiliata

  • Asia Garrasi
    Coordinatrice

  • Roberta Vignale
    Collaboratrice
Via Casale, 112 14033 Castell'Alfero (AT)
Zona: Castell'Alfero-Calliano-Moncalvo
Mostra su mappa
Affiliato
Studio Castell'Alfero Sas
Via Casale, 112 14033 Castell'Alfero (AT)

2025 Tecnocasa Franchising S.p.A. - P. IVA 08365160152 - Via Monte Bianco 60/A 20089 Rozzano (MI). Ogni agenzia ha un proprio titolare ed è autonoma. Privacy policy | Policy utilizzo | Cookie policy