Casa semindipendente in vendita

Castell'Alfero, Via Statale
€ 34.000
4 locali 4 locali
150 Mq 150 Mq
1 bagno 1 bagno

Casa semindipendente in vendita

Castell'Alfero, Via Statale

Descrizione annuncio

In posizione tranquilla e panoramica, a pochi minuti dal centro di Castell'Alfero, proponiamo in vendita casa semi indipendente libera su tre lati, completamente da ristrutturare, ideale per chi cerca un immobile da personalizzare in base ai propri gusti.

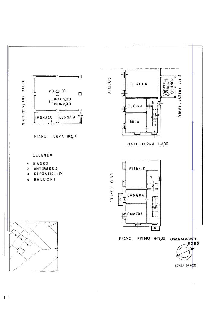
Al piano terra si sviluppa la zona giorno con cucina, sala, un'ampia stalla e il locale caldaia.
Al primo piano troviamo due camere da letto di generose dimensioni e un bagno finestrato.
Completa la proprietà un porticato di fronte alla casa, con diritto di passaggio passivo per il vicino.

Il tetto è stato completamente rifatto nel 2013, mentre l'impianto di riscaldamento è attualmente alimentato a gasolio con radiatori.

La casa gode di un'ottima esposizione e di una vista aperta sulle colline circostanti, perfetta per chi desidera vivere nella tranquillità della campagna astigiana, senza rinunciare alla comodità dei servizi raggiungibili in pochi minuti.

Mostra tutto

Nelle vicinanze

Trasporto pubblico Trasporto pubblico
Castell'Alfero (bv. Serra Perno)
Castell'Alfero (bv. Serra Perno)
490 m
Castell'Alfero (Casotto)
Castell'Alfero (Casotto)
530 m
Castell’Alfero
Castell’Alfero
1,3 Km
Farmacia Farmacia
Farmacia
1,7 Km
Farmacia Dalcielo
1,8 Km
Supermercati Supermercati
Mercatò
590 m
Negozi Negozi
Shun Fa
640 m
Ristoranti Ristoranti
Di Silvio
1,9 Km
Ciabot del Grignolin
2,4 Km
Agriturismo Terre d'Origine
2,7 Km
Ciabot
2,9 Km
Mostra tutto

Caratteristiche

Rif.:
61109186
Piano:
Terra con giardino di 2
Totale piani:
2
Balconi:
2
Camere da letto:
2
Arredamento:
Assente
Mostra tutto
Prezzo Prezzo
€ 34.000
Rata mutuo Rata mutuo
€ 160 / mese
Proponi il tuo prezzoProponi il tuo prezzo

Classe Energetica

G
G
G
G
G
G
G
G
G
EP globale non rinnovabile:
364.73 kW h/m² anno
EP globale rinnovabile:
0.00 kW h/m² anno
EP invernale del fabbricato:
EP estiva del fabbricato:
Anno di costruzione:
1800
Riscaldamento:
Autonomo
Tipo impianto:
A radiatori
Tipo alimentazione:
Gasolio

Ti interessa visionare l'immobile?

Fissa un appuntamento  Fissa un appuntamento

Richiedi informazioni

Clicca su Leggi per aprire l'informativa
* Questi campi sono obbligatori

Calcola il tuo mutuo

Semplice e senza impegno
Anticipo

( % )
Mutuo

( % )

pochi semplici passi

inserisci i tuoi dati
Questionario completato
Grazie per aver richiesto un appuntamento senza impegno con un nostro Consulente del Credito e Assicurativo.

Hai inserito correttamente tutti i dati necessari e a breve riceverai una e-mail con un link da convalidare per inviare i tuoi dati.
Affiliato
Studio Castell'Alfero Sas
Via Casale, 112 14033 Castell'Alfero (AT)

Il nostro staff


  • Chiara Zannino
    Affiliata

  • Asia Garrasi
    Coordinatrice

  • Roberta Vignale
    Collaboratrice
Via Casale, 112 14033 Castell'Alfero (AT)
Zona: Castell'Alfero-Calliano-Moncalvo
Mostra su mappa
Affiliato
Studio Castell'Alfero Sas
Via Casale, 112 14033 Castell'Alfero (AT)

2026 Tecnocasa Franchising S.p.A. - P. IVA 08365160152 - Via Monte Bianco 60/A 20089 Rozzano (MI). Ogni agenzia ha un proprio titolare ed è autonoma. Privacy policy | Policy utilizzo | Cookie policy