Bifamiliare in vendita

Castell'Alfero, Via Trieste
€ 185.000
11 locali 11 locali
300 Mq 300 Mq
2 bagni 2 bagni

Bifamiliare in vendita

Castell'Alfero, Via Trieste

Descrizione annuncio

Nel centro di Castell’Alfero, in posizione comoda a tutti i servizi ma al tempo stesso riservata, proponiamo in vendita casa semi indipendente di ampia metratura, caratterizzata da splendida vista aperta sulle colline del Monferrato e sulle catene montuose circostanti. La proprietà, edificata negli anni ’70, si sviluppa su più livelli ed è impreziosita da cortile privato interno, ideale per chi desidera uno spazio esterno vivibile in totale privacy.

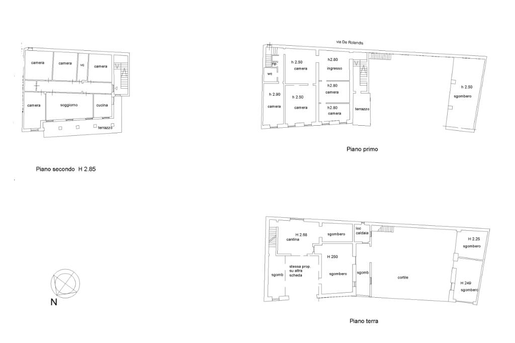
L’abitazione è composta al piano terra da diversi locali accessori tra cui cantina, magazzini e sgomberi, ambienti versatili che si prestano a molteplici utilizzi: taverna, zona hobby, laboratorio o spazi di servizio. Sempre al piano terreno si apre il cortile privato, un valore aggiunto raro nel centro del paese, all’interno del quale sono presenti ulteriori locali di deposito, perfetti da adibire a box auto, ricovero attrezzi o ulteriori spazi di rimessaggio.

Il piano primo ospita parte della zona abitativa con diverse camere , bagno, locali accessori e terrazzo panoramico con affaccio aperto sul paesaggio collinare, offrendo scorci suggestivi e grande luminosità agli ambienti.
Il piano secondo completa la proprietà con soggiorno, cucina, tre camere e servizio, oltre a un ulteriore terrazzo. Gli spazi risultano ben distribuiti, luminosi e facilmente personalizzabili secondo le proprie esigenze abitative.

Un elemento di particolare interesse è la presenza di ingressi separati per ciascun piano, caratteristica che offre la concreta possibilità di realizzare due appartamenti indipendenti, soluzione ideale per due nuclei familiari, per chi desidera un’abitazione con unità a reddito oppure per chi necessita di uno spazio dedicato a studio professionale o attività ricettiva.

Grazie alla generosa metratura, alla flessibilità degli ambienti e alla posizione centrale con vista panoramica, questa proprietà rappresenta una soluzione di grande potenziale, perfetta per famiglie numerose o per chi è alla ricerca di una casa caratteristica nel cuore di Castell’Alfero, con ampi spazi interni ed esterni e molteplici possibilità di valorizzazione.

Mostra tutto

Nelle vicinanze

Trasporto pubblico Trasporto pubblico
Castell'Alfero
Castell'Alfero
330 m
Castell'Alfero (Stazione FS)
Castell'Alfero (Stazione FS)
1,2 Km
Castell’Alfero
Castell’Alfero
1,1 Km
Farmacia Farmacia
Farmacia
130 m
Supermercati Supermercati
Mercatò
2,1 Km
Negozi Negozi
Shun Fa
2,1 Km
Ristoranti Ristoranti
Ciabot
2,2 Km
Ciabot del Grignolin
2,3 Km
Mostra tutto

Caratteristiche

Rif.:
61177961
Piano:
Su più livelli di 3
Totale piani:
3
Box:
3
Balconi:
1
Terrazzi:
2
Mostra tutto
Prezzo Prezzo
€ 185.000
Rata mutuo Rata mutuo
€ 872 / mese
Proponi il tuo prezzoProponi il tuo prezzo

Classe Energetica

Questo immobile è esente da classe energetica
Anno di costruzione:
1900
Riscaldamento:
Autonomo
Tipo impianto:
A radiatori
Tipo alimentazione:
Metano

Ti interessa visionare l'immobile?

Fissa un appuntamento  Fissa un appuntamento

Richiedi informazioni

Clicca su Leggi per aprire l'informativa
* Questi campi sono obbligatori

Calcola il tuo mutuo

Semplice e senza impegno
Anticipo

( % )
Mutuo

( % )

pochi semplici passi

inserisci i tuoi dati
Questionario completato
Grazie per aver richiesto un appuntamento senza impegno con un nostro Consulente del Credito e Assicurativo.

Hai inserito correttamente tutti i dati necessari e a breve riceverai una e-mail con un link da convalidare per inviare i tuoi dati.
Affiliato
Studio Castell'Alfero Sas
Via Casale, 112 14033 Castell'Alfero (AT)

Il nostro staff


  • Chiara Zannino
    Affiliata

  • Asia Garrasi
    Coordinatrice

  • Roberta Vignale
    Collaboratrice
Via Casale, 112 14033 Castell'Alfero (AT)
Zona: Castell'Alfero-Calliano-Moncalvo
Mostra su mappa
Affiliato
Studio Castell'Alfero Sas
Via Casale, 112 14033 Castell'Alfero (AT)

2026 Tecnocasa Franchising S.p.A. - P. IVA 08365160152 - Via Monte Bianco 60/A 20089 Rozzano (MI). Ogni agenzia ha un proprio titolare ed è autonoma. Privacy policy | Policy utilizzo | Cookie policy