Casa indipendente in vendita

Frinco, Località Vercellini
€ 180.000
12 locali 12 locali
350 Mq 350 Mq
5 bagni 5 bagni

Casa indipendente in vendita

Frinco, Località Vercellini

Descrizione annuncio

In posizione panoramica e immersa nella tranquillità, proponiamo una splendida trifamiliare completamente indipendente situata a Frinco, ideale per chi desidera grandi spazi, privacy e una soluzione adatta a più nuclei familiari. L’immobile è composto da tre appartamenti, ognuno con ingresso indipendente.

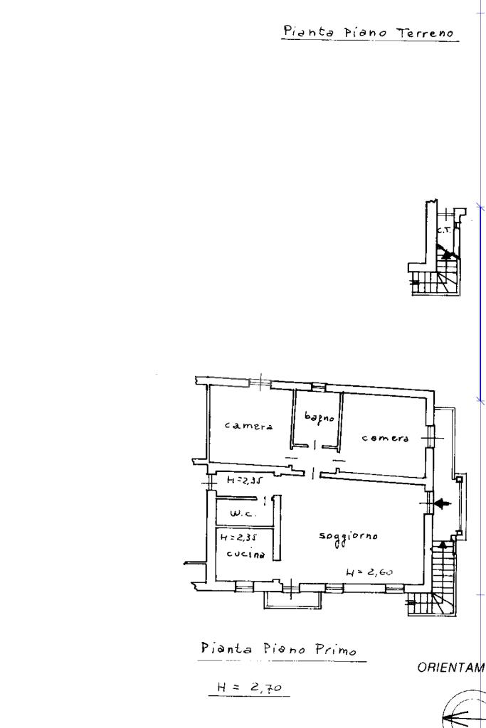
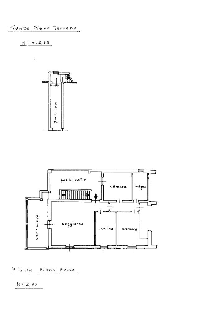
Al piano terra si sviluppa il primo appartamento, caratterizzato dal fascino delle voltine in mattoni originali perfettamente conservate. La disposizione interna comprende una cucina, una sala molto ampia collegata a un’ulteriore sala più raccolta, due bagni, una camera da letto, uno studio, una grande taverna ideale per momenti conviviali, un porticato coperto e diversi ripostigli che garantiscono comodi spazi di servizio.

Al primo piano si trovano gli altri due appartamenti. Il primo è composto da una spaziosa sala, angolo cucina, due bagni e due camere da letto. Il secondo appartamento offre una luminosa sala collegata alla cucina, dalla quale si accede al terrazzo panoramico; completano la disposizione due camere da letto, un bagno e un secondo porticato coperto perfetto per pranzi all’aperto o momenti di relax.

A completare la proprietà vi sono una tettoia utilizzata come box auto, un locale attrezzi e un ampio giardino privato che circonda l’abitazione, garantendo privacy e spazi verdi vivibili in ogni stagione.

Gli impianti sono stati rifatti nel 2002 e il tetto è stato ripassato 20 anni fa.
Il riscaldamento è autonomo a gas metano e ogni appartamento è gestito dalla propria caldaia.

Questa casa rappresenta una soluzione ricca di potenzialità grazie alla vista aperta, alla totale indipendenza, alla quiete del contesto e alle generose metrature interne ed esterne.

Mostra tutto

Nelle vicinanze

Trasporto pubblico Trasporto pubblico
Frinco (San Rocco)
Frinco (San Rocco)
310 m
Frinco (Comune)
Frinco (Comune)
510 m
Scuole Scuole
Scuola Primaria
2,9 Km
Farmacia Farmacia
Farmacia Venezia
2,9 Km
Ristoranti Ristoranti
Ristorante Nuovo Cicot
1,2 Km
Mostra tutto

Caratteristiche

Rif.:
61196110
Piano:
2 di 2 (Piano su più livelli)
Box:
1
Terrazzi:
1
Camere da letto:
5
Arredamento:
Assente
Mostra tutto
Prezzo Prezzo
€ 180.000
Rata mutuo Rata mutuo
€ 849 / mese
Proponi il tuo prezzoProponi il tuo prezzo

Classe Energetica

Questo immobile è esente da classe energetica
Anno di costruzione:
1900
Riscaldamento:
Autonomo
Tipo impianto:
A radiatori
Tipo alimentazione:
Metano

Ti interessa visionare l'immobile?

Fissa un appuntamento  Fissa un appuntamento

Richiedi informazioni

Clicca su Leggi per aprire l'informativa
* Questi campi sono obbligatori

Calcola il tuo mutuo

Semplice e senza impegno
Anticipo

( % )
Mutuo

( % )

pochi semplici passi

inserisci i tuoi dati
Questionario completato
Grazie per aver richiesto un appuntamento senza impegno con un nostro Consulente del Credito e Assicurativo.

Hai inserito correttamente tutti i dati necessari e a breve riceverai una e-mail con un link da convalidare per inviare i tuoi dati.
Affiliato
Studio Castell'Alfero Sas
Via Casale, 112 14033 Castell'Alfero (AT)

Il nostro staff


  • Chiara Zannino
    Affiliata

  • Asia Garrasi
    Coordinatrice

  • Roberta Vignale
    Collaboratrice
Via Casale, 112 14033 Castell'Alfero (AT)
Zona: Castell'Alfero-Calliano-Moncalvo
Mostra su mappa
Affiliato
Studio Castell'Alfero Sas
Via Casale, 112 14033 Castell'Alfero (AT)

2026 Tecnocasa Franchising S.p.A. - P. IVA 08365160152 - Via Monte Bianco 60/A 20089 Rozzano (MI). Ogni agenzia ha un proprio titolare ed è autonoma. Privacy policy | Policy utilizzo | Cookie policy