Deposito in vendita

Portacomaro, Deposito Via Castellazzo - Berruti
€ 35.000
200 Mq 200 Mq

Deposito in vendita

Portacomaro, Deposito Via Castellazzo - Berruti

Descrizione annuncio

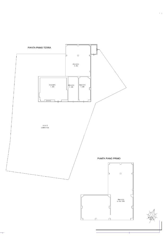
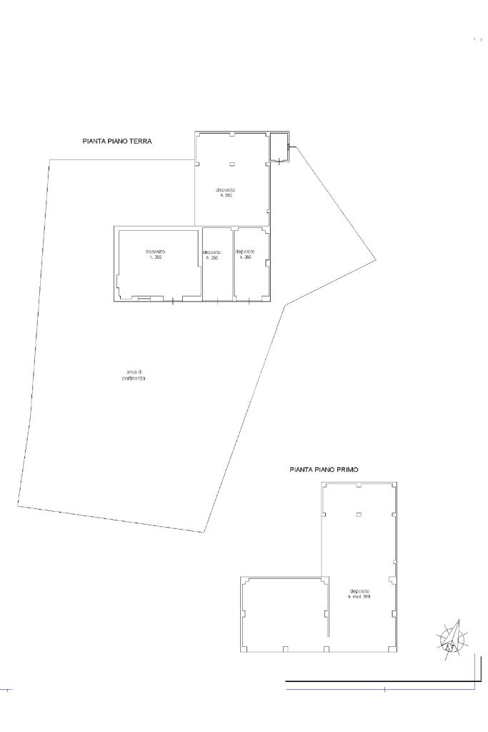
Proponiamo in vendita un ampio deposito di circa 200 mq, situato a Portacomaro, disposto su due livelli.
La struttura è ideale per chi cerca grandi spazi fruibili come magazzino, laboratorio, locale per attività artigianali oppure per una futura trasformazione in residenza.
Al piano terra la struttura dispone di 4 vani sfruttabili e un'ulteriore locale al primo piano.

La proprietà comprende anche un giardino privato e un terreno di circa 1800mq. Pur nascendo come deposito, la struttura ha un’ottima base per una futura conversione in abitazione. La disposizione su due livelli e la generosità degli spazi rendono l’immobile molto flessibile per una trasformazione completa.

Mostra tutto

Nelle vicinanze

Trasporto pubblico Trasporto pubblico
Trasporto pubblico
2,1 Km
Portacomaro (Isofluss)
Portacomaro (Isofluss)
2,5 Km
Scuole Scuole
Scuole
1,1 Km
Scuola Media Giuseppe Parini
1,1 Km
Farmacia Farmacia
Antica farmacia della vigna
1,0 Km
Farmacia Dalcielo
2,8 Km
Ristoranti Ristoranti
Locanda Antico Ricetto
1,1 Km
Agriturismo Il Rifugio del Ghiro
1,2 Km
La Raviola Galante
2,6 Km
Agriturismo Terre d'Origine
2,6 Km
Di Silvio
3,0 Km
Mostra tutto

Caratteristiche

Rif.:
61168717
Piano:
Terra con giardino di 2
Totale piani:
2
Condizionamento:
Assente
Ascensore:
No
Riscaldamento:
Assente
Mostra tutto
Prezzo Prezzo
€ 35.000
Rata mutuo Rata mutuo
€ 165 / mese
Proponi il tuo prezzoProponi il tuo prezzo

Altre caratteristiche

Classe Energetica

Questo immobile è esente da classe energetica
Anno di costruzione:
1900
Riscaldamento:
Assente

Ti interessa visionare l'immobile?

Fissa un appuntamento  Fissa un appuntamento

Richiedi informazioni

Clicca su Leggi per aprire l'informativa
* Questi campi sono obbligatori

Calcola il tuo mutuo

Semplice e senza impegno
Anticipo

( % )
Mutuo

( % )

pochi semplici passi

inserisci i tuoi dati
Questionario completato
Grazie per aver richiesto un appuntamento senza impegno con un nostro Consulente del Credito e Assicurativo.

Hai inserito correttamente tutti i dati necessari e a breve riceverai una e-mail con un link da convalidare per inviare i tuoi dati.
Affiliato
Studio Castell'Alfero Sas
Via Casale, 112 14033 Castell'Alfero (AT)

Il nostro staff


  • Chiara Zannino
    Affiliata

  • Asia Garrasi
    Coordinatrice

  • Roberta Vignale
    Collaboratrice
Via Casale, 112 14033 Castell'Alfero (AT)
Zona: Castell'Alfero-Calliano-Moncalvo
Mostra su mappa
Affiliato
Studio Castell'Alfero Sas
Via Casale, 112 14033 Castell'Alfero (AT)

2026 Tecnocasa Franchising S.p.A. - P. IVA 08365160152 - Via Monte Bianco 60/A 20089 Rozzano (MI). Ogni agenzia ha un proprio titolare ed è autonoma. Privacy policy | Policy utilizzo | Cookie policy