Casa semindipendente in vendita

Portacomaro, Via Mongaribatto
€ 280.000
5 locali 5 locali
260 Mq 260 Mq
2 bagni 2 bagni

Casa semindipendente in vendita

Portacomaro, Via Mongaribatto

Descrizione annuncio

Nel comune di Portacomaro, è disponibile una casa semindipendente in vendita, ideale per chi cerca spazio e comfort.
Questa porzione di bifamiliare, situata in una posizione panoramica e collinare, offre una vista incantevole e tranquillità.

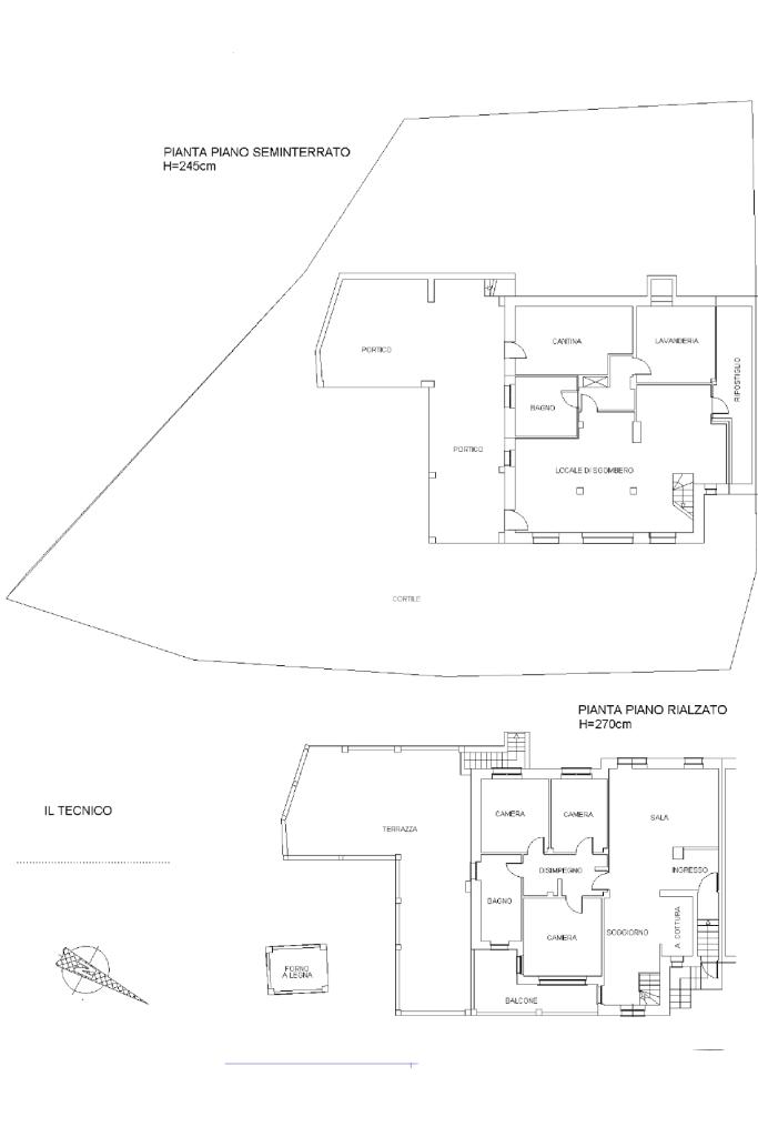
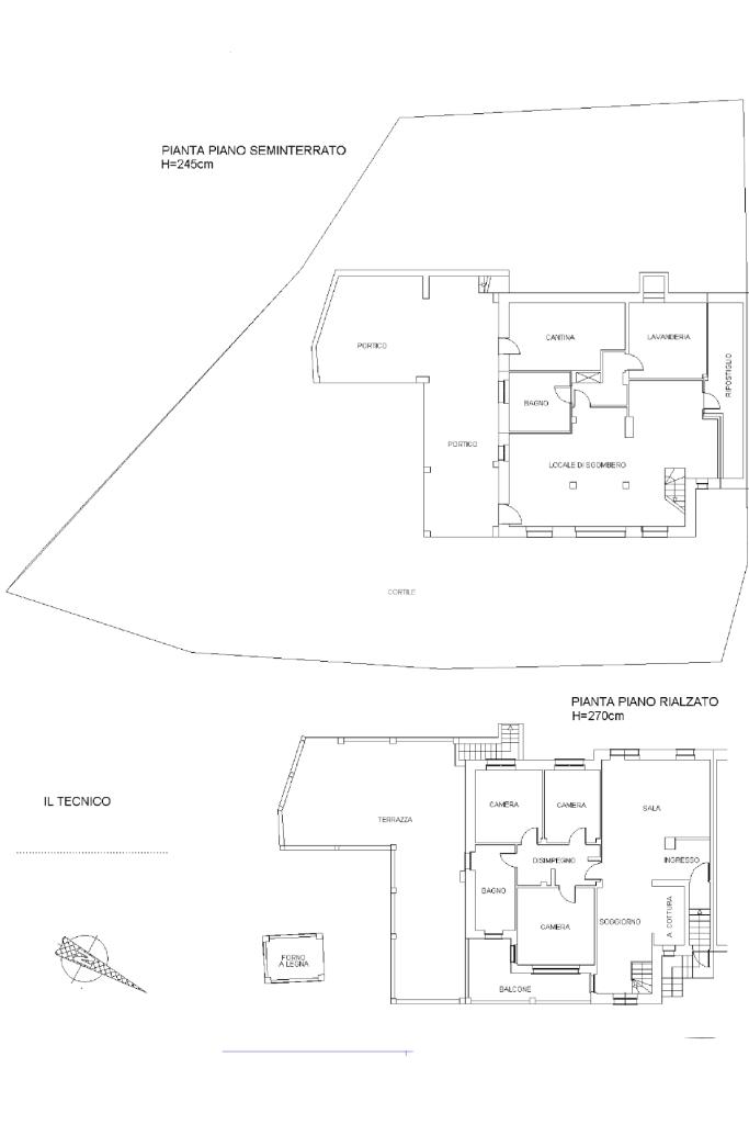
L'immobile si sviluppa su due livelli: al piano terra si trova una taverna accogliente con bagno e una camera, perfetta per ospiti o per creare uno spazio indipendente.
Al primo piano, l'intera parte abitativa comprende una sala spaziosa, una cucina funzionale, tre camere da letto e un bagno.
Gli spazi esterni includono un giardino privato, ideale per momenti di relax all'aperto, e due terrazzi che offrono ulteriori spazi per godere del panorama.

Completano la proprietà un balcone, un box auto e l'aria condizionata per il massimo comfort.

Costruita nel 1975 circa e ristruttrata interamente agli inizi del 2000, questa casa rappresenta un'opportunità unica per chi desidera vivere in un contesto sereno e ben collegato.

Mostra tutto

Nelle vicinanze

Trasporto pubblico Trasporto pubblico
Trasporto pubblico
570 m
Castell'Alfero (bv. Serra Perno)
Castell'Alfero (bv. Serra Perno)
2,0 Km
Castell’Alfero
Castell’Alfero
2,7 Km
Scuole Scuole
Scuola Media Giuseppe Parini
1,6 Km
Scuole
1,6 Km
Farmacia Farmacia
Antica farmacia della vigna
1,7 Km
Farmacia Dalcielo
2,8 Km
Supermercati Supermercati
Mercatò
2,1 Km
Negozi Negozi
Shun Fa
2,1 Km
Ristoranti Ristoranti
Agriturismo Terre d'Origine
630 m
Locanda Antico Ricetto
1,6 Km
La Raviola Galante
2,2 Km
Ciabot del Grignolin
3,0 Km
Mostra tutto

Caratteristiche

Rif.:
61096804
Piano:
Terra con giardino di 2
Totale piani:
2
Box:
1
Balconi:
1
Terrazzi:
2
Mostra tutto
Prezzo Prezzo
€ 280.000
Rata mutuo Rata mutuo
€ 1.320 / mese
Spese annue Spese annue
€ 0
Proponi il tuo prezzoProponi il tuo prezzo

Classe Energetica

Questo immobile è esente da classe energetica
Anno di costruzione:
1975
Riscaldamento:
Autonomo
Tipo impianto:
A radiatori
Tipo alimentazione:
GPL

Ti interessa visionare l'immobile?

Fissa un appuntamento  Fissa un appuntamento

Richiedi informazioni

Clicca su Leggi per aprire l'informativa
* Questi campi sono obbligatori

Calcola il tuo mutuo

Semplice e senza impegno
Anticipo

( % )
Mutuo

( % )

pochi semplici passi

inserisci i tuoi dati
Questionario completato
Grazie per aver richiesto un appuntamento senza impegno con un nostro Consulente del Credito e Assicurativo.

Hai inserito correttamente tutti i dati necessari e a breve riceverai una e-mail con un link da convalidare per inviare i tuoi dati.
Affiliato
Studio Castell'Alfero Sas
Via Casale, 112 14033 Castell'Alfero (AT)

Il nostro staff


  • Chiara Zannino
    Affiliata

  • Asia Garrasi
    Coordinatrice

  • Roberta Vignale
    Collaboratrice
Via Casale, 112 14033 Castell'Alfero (AT)
Zona: Castell'Alfero-Calliano-Moncalvo
Mostra su mappa
Affiliato
Studio Castell'Alfero Sas
Via Casale, 112 14033 Castell'Alfero (AT)

2025 Tecnocasa Franchising S.p.A. - P. IVA 08365160152 - Via Monte Bianco 60/A 20089 Rozzano (MI). Ogni agenzia ha un proprio titolare ed è autonoma. Privacy policy | Policy utilizzo | Cookie policy